Hey! Login of meld je aan
Afbeelding De Blauwe Beek fase 2 | Oploo
Oploo
In verkoop

De Blauwe Beek fase 2 | Oploo

€ 325.000 tot € 535.000

De Blauwe Beek fase 2 | Oploo | Oploo

Beleef jouw toekomstige thuis van dichtbij!
Dit is jouw kans om als één van de eersten over de bouwplaats te lopen en te ervaren op welke plek deze prachtige nieuwbouwwoning werkelijkheid wordt. Beleef de omgeving en bewonder tegelijk de gerealiseerde woningen uit fase 1.

Onze makelaars vertellen je alles over de afwerking, indelingsmogelijkheden en de laatste stand van zaken. Dé kans om vragen te stellen, sfeer te proeven en inspiratie op te doen voor je toekomstige huis.


Mis deze unieke kans niet!
Schrijf je vandaag nog in voor de rondleiding via Brouwers Moors & Partners of Makelaardij Twan Poels. We kijken ernaar uit om je rond te leiden op de plek waar een nieuw hoofdstuk begint. Jouw nieuwe thuis is dichterbij dan je denkt… ?

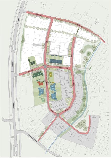
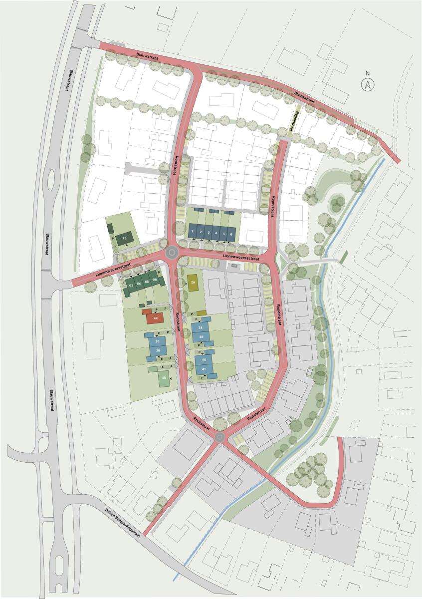
Wonen in De Blauwe Beek betekent genieten van een landelijke omgeving nabij het dorpscentrum, waar het bourgondische Brabantse leven op je wacht. In De Blauwe Beek woon je straks nieuw, duurzaam én op een plek met veel natuur om je heen. Het centrum van Oploo en alle voorzieningen liggen op loop- en fietsafstand. Zie jij jezelf hier al thuis komen?


Je vindt dan ook alle informatie online. Aan de westkant van Oploo, tussen de Blauwstraat, Deken Schmerlingstraat en de Kleine Beek, verrijst een nieuwe, groene woonwijk: De Blauwe Beek. Een dorps en ruim opgezet gebied met volop aandacht voor natuur, klimaatadaptatie en prettig wonen. De wijk sluit aan op het bestaande dorpshart en wordt omringd door veel groen en water.

Gevarieerd woningaanbod in fase 2
In totaal komen er circa 16 grondgebonden woningen in verschillende types:

Zes startersboerderijwoningen (waaronder 2 hoekwoningen en 4 rijwoningen)
Twee tussenwoningen
Twee hoekwoningen
Zes twee-onder-een-kapwoningen

In De Blauwe Beek ontstaat een bruisende buurt waar jong en oud zich thuisvoelt en waar groen een hoofdrol speelt. Meer weten? Klik op de knop hieronder om op de hoogte te blijven.
Lees meer Lees Minder
Gratis waardebepaling

Benieuwd wat je woning waard is in de huidige markt?

Woningtypes

Tussenwoning | Type D

  • 96 m²
€ 340.000 vrij op naam
Geen woningen (meer) beschikbaar
Woning
Status
Wonen
Kamers
Prijs
Bouwnummer 64
Verkocht onder voorbehoud
96 m²
5 kamers (3 slaapkamers)
€ 340.000
Bouwnummer 65
Verkocht onder voorbehoud
96 m²
5 kamers (3 slaapkamers)
€ 340.000
Hoekwoning | Type D

  • 102 m²
Van € 390.000 tot € 395.000 vrij op naam
Geen woningen (meer) beschikbaar
Woning
Status
Wonen
Kamers
Prijs
Bouwnummer 63
Verkocht onder voorbehoud
102 m²
5 kamers (3 slaapkamers)
€ 390.000
Bouwnummer 66
Verkocht onder voorbehoud
102 m²
5 kamers (3 slaapkamers)
€ 395.000
Startersboerderijwoning Hoekwoning | Type F

  • 96 m²
€ 350.000 vrij op naam
Geen woningen (meer) beschikbaar
Woning
Status
Wonen
Kamers
Prijs
Bouwnummer 1
Verkocht onder voorbehoud
96 m²
4 kamers (2 slaapkamers)
€ 350.000
Bouwnummer 6
Verkocht onder voorbehoud
96 m²
4 kamers (2 slaapkamers)
€ 350.000
Twee-onder-een-kapwoning | Type J

  • 149 m²
Van € 507.500 tot € 510.000 vrij op naam
2 woningen beschikbaar
Woning
Status
Wonen
Kamers
Prijs
Bouwnummer 40
Onder optie
149 m²
5 kamers (3 slaapkamers)
€ 507.500
Bouwnummer 41
Beschikbaar
149 m²
5 kamers (3 slaapkamers)
€ 510.000
Twee-onder-een-kapwoning | Type H

  • 149 m²
Van € 505.000 tot € 507.500 vrij op naam
1 woning beschikbaar
Woning
Status
Wonen
Kamers
Prijs
Bouwnummer 38
Verkocht onder voorbehoud
149 m²
5 kamers (3 slaapkamers)
€ 505.000
Bouwnummer 39
Beschikbaar
149 m²
5 kamers (3 slaapkamers)
€ 507.500
Startersboerderijwoning Tussenwoning | Type F

  • 96 m²
€ 330.000 vrij op naam
Geen woningen (meer) beschikbaar
Woning
Status
Wonen
Kamers
Prijs
Bouwnummer 2
Verkocht onder voorbehoud
96 m²
4 kamers (2 slaapkamers)
€ 330.000
Bouwnummer 3
Verkocht onder voorbehoud
96 m²
4 kamers (2 slaapkamers)
€ 330.000
Bouwnummer 4
Verkocht onder voorbehoud
96 m²
4 kamers (2 slaapkamers)
€ 330.000
Bouwnummer 5
Verkocht onder voorbehoud
96 m²
4 kamers (2 slaapkamers)
€ 330.000
Twee-onder-een-kapwoning | Type B

  • 149 m²
€ 520.000 vrij op naam
2 woningen beschikbaar
Woning
Status
Wonen
Kamers
Prijs
Bouwnummer 28
Beschikbaar
149 m²
5 kamers (3 slaapkamers)
€ 520.000
Bouwnummer 29
Onder optie
149 m²
5 kamers (3 slaapkamers)
€ 520.000

Planning

Start verkoop 24 sep. 2025
Start bouw 1 jun. 2026
Start oplevering 1 jul. 2027

Dit is de locatie

Faciliteiten